Home
Residential
Commercial
Studio Concepts
Services
Contact
Menu
welcome
Home
Residential
Commercial
Studio Concepts
Services
Contact
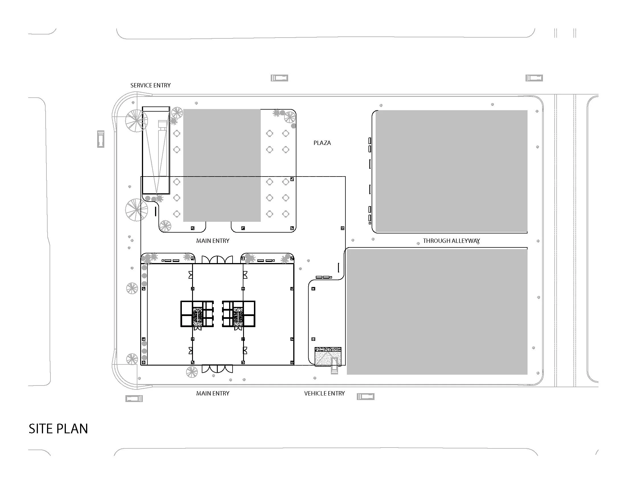
Dream Tower - Instructed by Osman Attmann, PhD - Spring 2020